Traumhafte Doppelhaushälfte mit Einliegerwohnung, Sauna und Kamin!
42651 Solingen, Doppelhaushälfte zum Kauf
Kontaktdaten
-
NameHerr Gianluca Sancillo
-
FirmaPARLAK IMMOBILIEN GmbH
-
AdresseBerliner Allee 43
40212 Düsseldorf -
E-Mail Zentrale
-
E-Mail Direkt
-
Tel. Zentrale
-
Tel. Durchwahl
-
Mobil
-
Fax0049021194198703
Objektdaten
-
Objekt ID1736
-
ObjekttypenDoppelhaushälfte, Haus
-
Adresse42651 Solingen
-
Etagen im Haus2
-
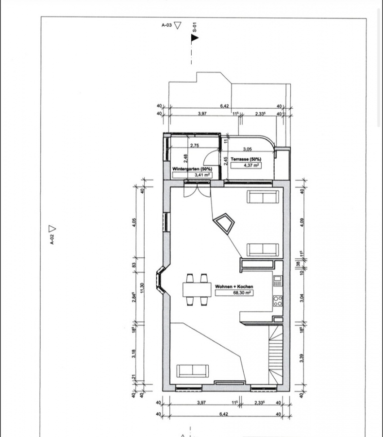
Wohnfläche ca.211,46 m²
-
Grundstück ca.331 m²
-
Nutzfläche ca.152,38 m²
-
Zimmer4,5
-
Schlafzimmer3
-
Badezimmer4
-
Separate WC3
-
Balkone2
-
Terrassen1
-
Wesentlicher EnergieträgerLuft/Wasser Wärmepumpe
-
Baujahr1993
-
Garage1 Stellplatz
-
Käuferprovision3,57% (inkl. 19% MwSt.)
-
Kaufpreis639.000 EUR
Ausstattung / Merkmale
- Balkon
- Einliegerwohnung
- Separates WC
- Terrasse
Energieausweis
-
EnergieausweistypBedarfsausweis
-
Ausstellungsdatumab dem 1.5.2014
-
Gültig bis01.11.2035
-
GebäudeartWohngebäude
-
Baujahr1993
-
Wesentlicher EnergieträgerLuft/Wasser Wärmepumpe
-
Endenergiebedarf50,80 kWh/(m²·a)
-
EnergieeffizienzklasseB
Objektbeschreibung
Beschreibung
Diese gepflegte Doppelhaushälfte mit Einliegerwohnung aus dem Jahr 1993 vereint zeitlose Architektur mit einer hochwertigen Ausstattung und einem durchdachten Raumkonzept. Auf einer Wohnfläche von rund 211 m² bietet die Immobilie vielseitige Nutzungsmöglichkeiten – ideal für Familien, Paare mit Platzbedarf oder Mehrgenerationenwohnen.
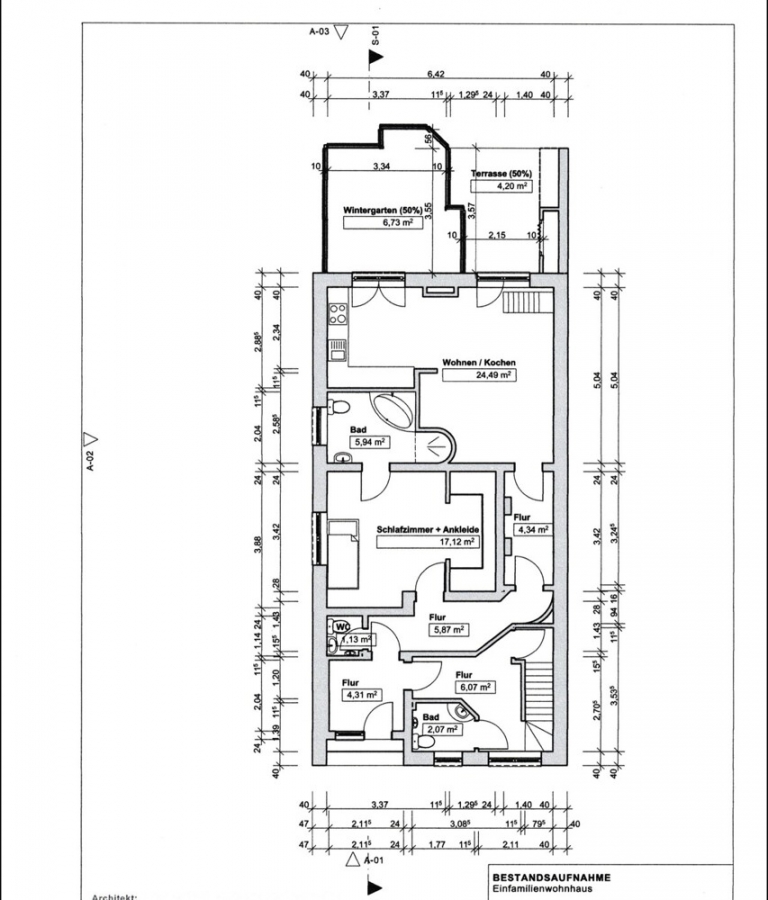
Großzügige Fensterflächen sorgen für helle, freundliche Räume und ein angenehmes Wohnklima. Klassische Stuckelemente an Wänden und Decken unterstreichen den eleganten Charakter des Hauses und verleihen den Wohnräumen eine besondere Note.
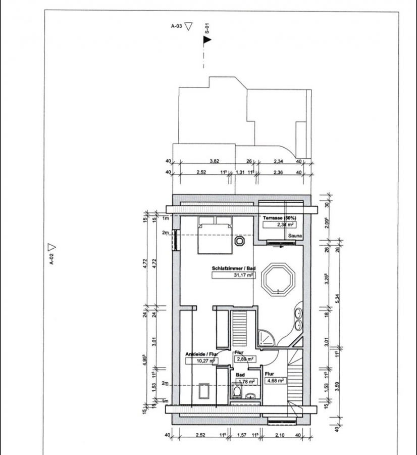
Das Haus verfügt über zwei Kamine, die sowohl im Wohnbereich als auch in der Einliegerwohnung für eine behagliche Atmosphäre sorgen. Das Wohnzimmer bietet einen direkten Zugang zur Terrasse und zum gepflegten Garten – ideal für entspannte Stunden im Freien.
Im Schlafzimmer befindet sich ein modernes Bad en suite mit einer großzügigen, bodentiefen Badewanne, das Komfort und Privatsphäre auf hohem Niveau bietet.
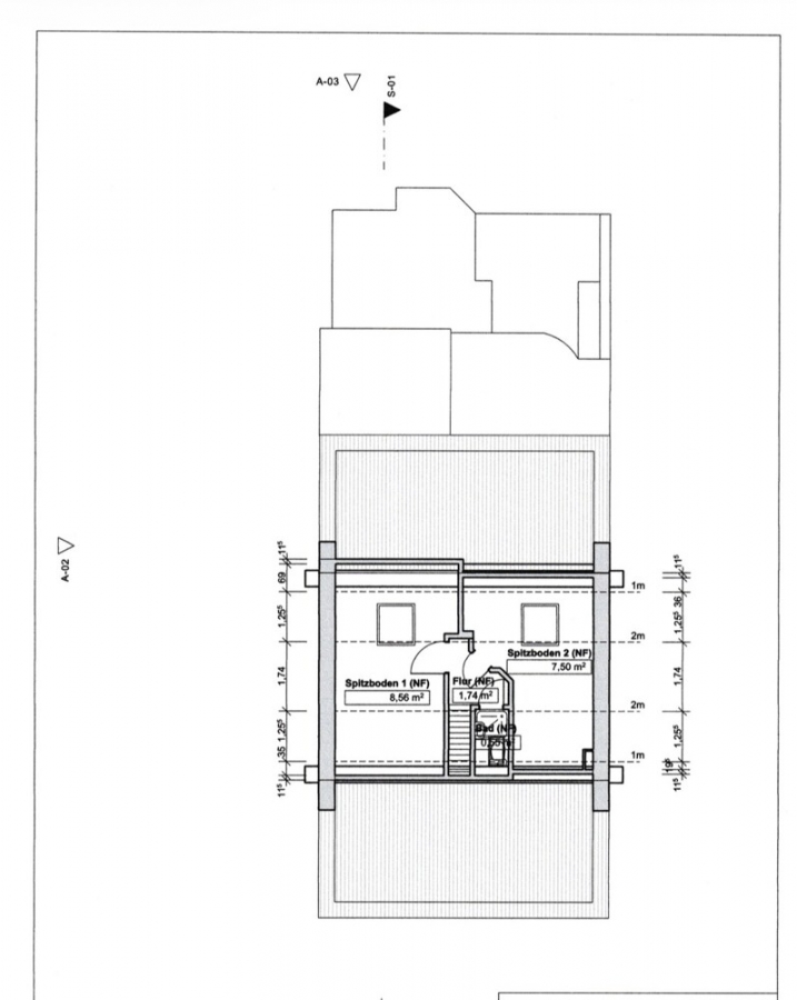
Ein weiteres Highlight ist die Sauna auf dem Balkon, die private Wellnessmomente in ruhiger Umgebung ermöglicht. Der lichtdurchflutete Wintergarten mit Blick ins Grüne schafft zusätzlichen Raum für Erholung und vielseitige Nutzungsmöglichkeiten – ob als Frühstücksbereich, Atelier oder Rückzugsort.
Die Einliegerwohnung bietet zusätzliche Flexibilität, beispielsweise als separater Arbeits-, Gäste- oder Jugendbereich.
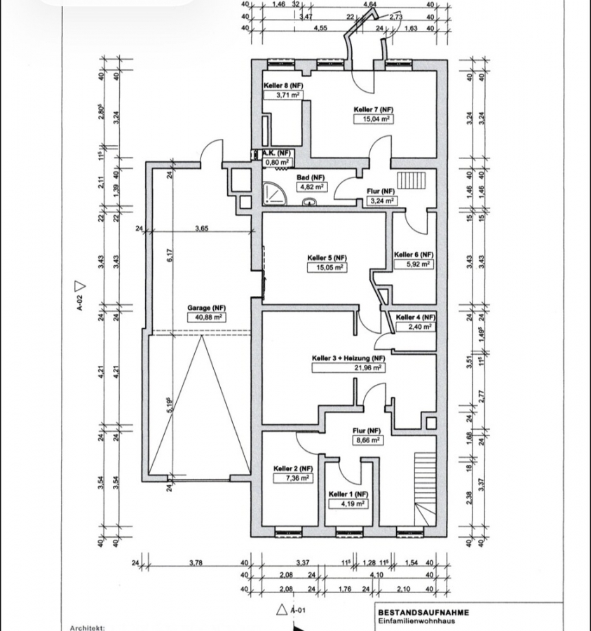
Eine Garage sowie weitere Außenstellplätze runden das Gesamtangebot ab.
Diese Immobilie überzeugt durch ihre solide Bauweise, die großzügige Raumaufteilung und ein stimmiges Gesamtambiente – ein Haus, das Wohnkomfort und Stil auf ansprechende Weise vereint.
Ausstattung
- Baujahr: 1993
- Wohnfläche: ca. 211 m²
- Nutzfläche: ca. 152,38 m² (ausbaufähig)
- Doppelhaushälfte mit separater Einliegerwohnung
- Sauna auf dem Balkon
- 2 Kamine
- Stilvolle Stuckelemente an Wänden und Decken
- Großzügiger, heller Wintergarten mit Blick ins Grüne
- Gepflegter Garten mit Terrasse
- Modernes Tageslichtbad
- Schlafzimmer mit Bad en suite
- Garage und zusätzliche Stellplätze
- Ruhige und familienfreundliche Lage
- Gute Raumaufteilung – ideal für Familien oder Mehrgenerationenhaushalte
Sonstige Informationen
Dieses Angebot ist vertraulich und nur für Sie bestimmt.
Besichtigungen und Verhandlungen erfolgen nur zusammen mit einem unserer Mitarbeiter. Eine Weitergabe an Dritte kann nur mit unserem Einverständnis geschehen.
Der guten Ordnung halber möchten wir darauf aufmerksam machen, dass bei Abschluss eines notariellen Kaufvertrages, der durch unseren Nachweis
und/oder Vermittlung zustande kommt, oder bei Ersteigerung, der Käufer an uns eine Maklerprovision in der im Exposé explizit ausgewiesenen Höhe inkl. gesetzlicher MwSt. des vereinbarten Kaufpreises zu zahlen hat.
Sämtliche Angaben sind vom Eigentümer übernommen. Für die Richtigkeit kann keine Haftung übernommen werden.
Lage
Die Immobilie befindet sich in einer sehr guten und begehrten Wohnlage von Solingen, die sich durch Ruhe, gepflegtes Umfeld und eine hervorragende Infrastruktur auszeichnet. Eingebettet in eine grüne, gewachsene Nachbarschaft bietet sie ein hohes Maß an Lebensqualität und Privatsphäre.
Der Ausblick ins Grüne vermittelt das Gefühl, mitten in der Natur zu wohnen – und dennoch profitieren Sie von einer optimalen Anbindung an das städtische Leben. Einkaufsmöglichkeiten für den täglichen Bedarf, Kindergärten, Schulen sowie Ärzte befinden sich in unmittelbarer Nähe und sind bequem erreichbar.
Die Umgebung ist geprägt von Einfamilienhäusern und großzügigen Gärten, was ein besonders angenehmes Wohnumfeld schafft. Zahlreiche Spazier- und Radwege, kleine Parks und Waldgebiete bieten vielfältige Möglichkeiten zur Erholung in der Natur.
Auch Pendler schätzen die Lage: Über die nahegelegenen Verkehrsverbindungen sind Wuppertal, Düsseldorf und Köln schnell erreichbar. Gleichzeitig laden die Solinger Innenstadt, charmante Cafés und lokale Geschäfte zum Bummeln ein.
Die dargestellte Position der Immobilie ist nur eine ungefähre Angabe.

































